Hotel Aigua Clara

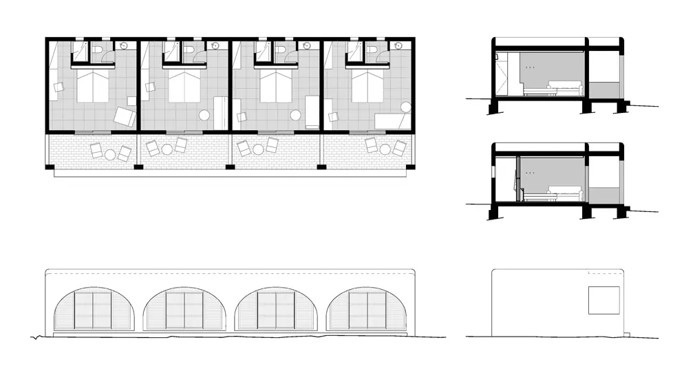
Después de muchos años abriendo sus puertas cada temporada de verano, el hotel inició su proceso de transformación y modernización para convertirse en un hotel de 3 estrellas que disfruta de las vistas de primera línea de playa. Debido a la complejidad de una reforma completa que debe permitir que el edificio entre en uso cada verano, las obras de renovación y ampliación (100 m²) se llevan a cabo en diferentes fases.

-

Autor

Joan Alomar

Cliente

Hotel Aigua Clara

Año

2016 - en proceso

Emplazamiento

Formentera, España

No Comments

Ir al contenido