Kindergarten Llubí

Besides the specific regulations and security requirements for schools, for this particular project we believe in the need of an special architecture, because this building will influence a key moment in the education of a human been.
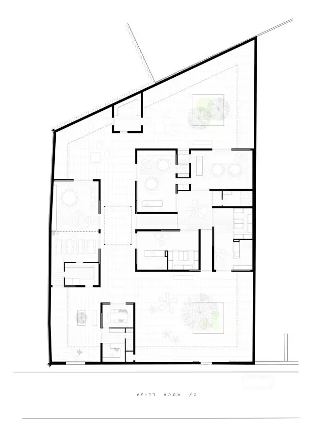
As in the urban architecture of the villages of Mallorca: with one façade facing the street and one facing the back yard; we create an area scaled to the size of its inhabitants, with different buildings and outdoor spaces; forming an small village where children will find an atmosphere that will inspire them to learn first-hand childhood.

-

Author

Joan Alomar

Client

Llubí city hall

Year

2017

Project location

Llubí [Mallorca], Spain

Skip to content