Son Martorell elderly center

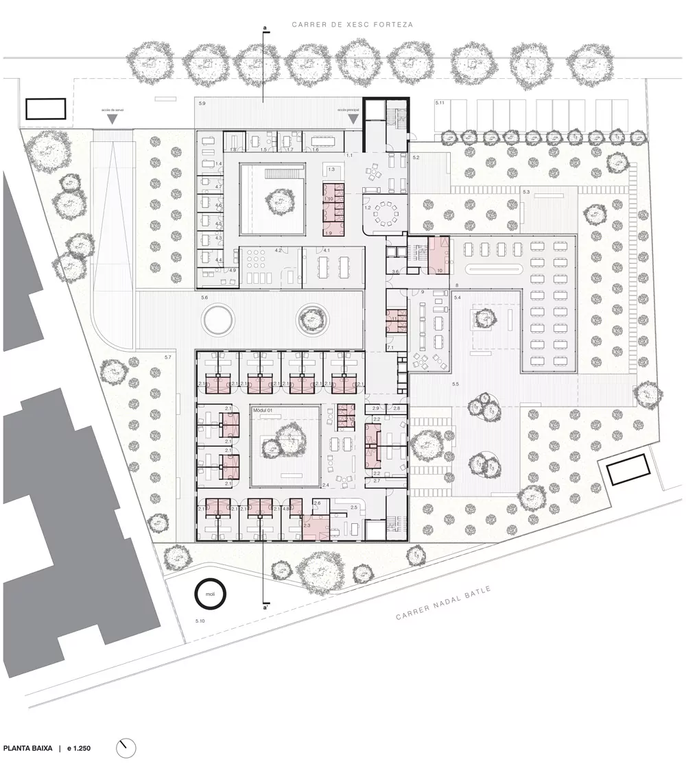
The location of this building is an urban setting within walking distance to the seafront promenade and the boundary between urban and rural lands of orchards and crops. The context consisting of multi-family blocks isolated on a medium scale that does not allow the integration of a large building, therefore we propose the implantation of a building articulated in 3 volumes, this fragmentation reduces the visual impact of the new building and allows the correct integration into the urban fabric.
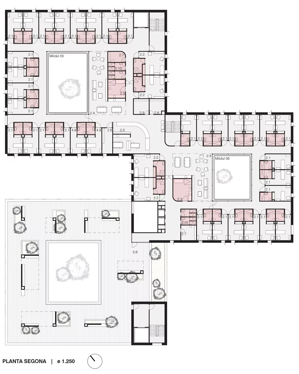
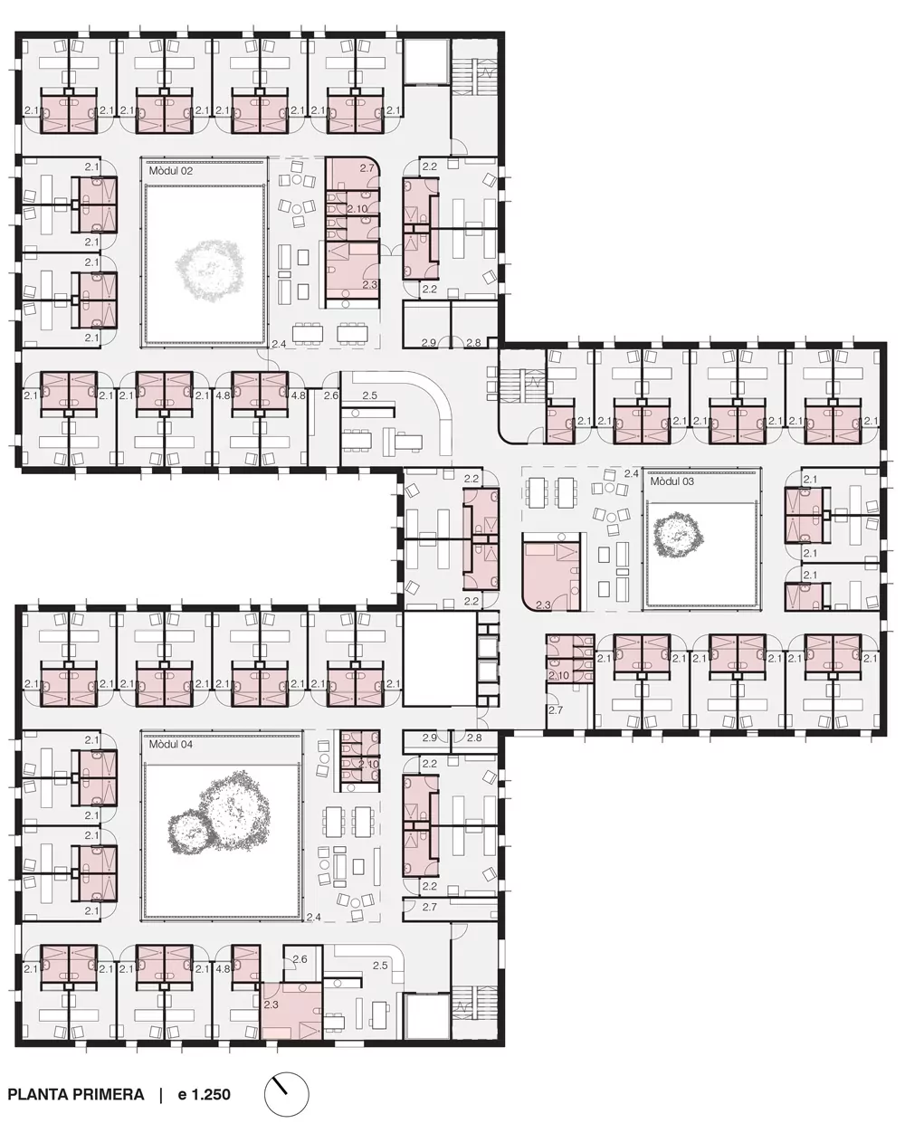
This set of volumes, in which two of them consist of 3 levels and one of 2 levels (plus an additional basement), combined with inner courtyards generates a richness of spaces both inside and outside. In the buildings highlights the wide variety of interior-exterior connections that occur in all the floors of the building. In addition, all areas of the building have natural light, cross-ventilation and agile internal communications to facilitate the smooth running of the building.
The building is located as close to the north of the plot as possible, in order to open to the south orientation and to generate a reserve of public space around the cataloged mill, dignifying the last architectural vestige of the ancient rural estate of Son Martorell.

Honorable mention

Author

Joan Alomar

Client

Consorci de Recursos Sociosanitaris i Assistencials dels Illes Balears

Year

2017

Location

Palma de Mallorca, Spain

Skip to content